Concept
Str. Viitorului nr. 12
Oxigenului - Pallady
Str. Oxigenului la 500m,
Drumul Între Tarlale la 700m,
Bdul Theodor Pallady la 900m,
Centura București la 700m,
Metrou Anghel Saligny: 2.500 m
Stație RATB: 700 m


Str. Viitorului nr. 12
Drumul Între Tarlale
Str. Oxigenului la 500m,
Drumul Între Tarlale la 700m,
Bdul Theodor Pallady la 900m,
Centura București la 700m.
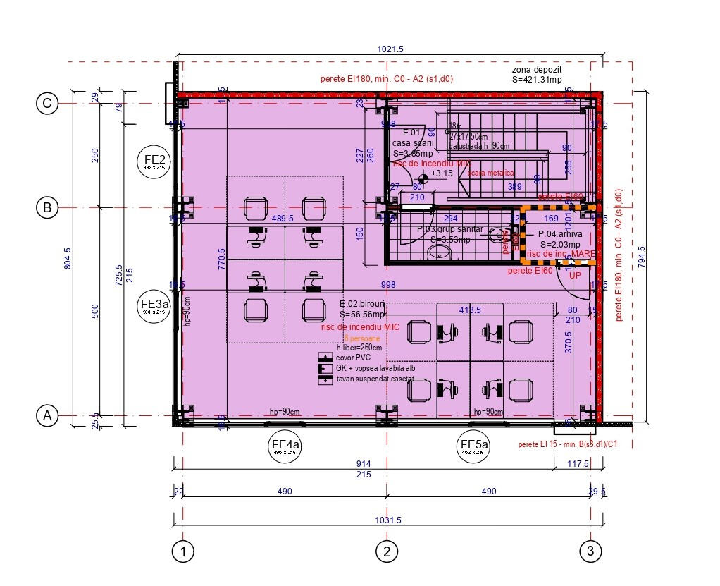
Plan Parter
Amprenta: 511 mp

Plan Etaj
Suprafata: 83 mp

MZ Logistic Park
Str. Viitorului nr. 12

Dotări
Hală de închiriat în zona de de Est a Bucureștiului compusă din spații de depozitare și spații de birouri dispuse la parter și etaj.Proprietatea este localizată excelent: Str. Oxigenului la 500m, Drumul Între Tarlale la 700m, Bdul Theodor Pallady la 900m, Centura București la 700m. Parcul logistic este poziționat în interiorul inelului de centură astfel încât beneficiați de acces rapid și facil la orice mijloc de transport public, inclusiv metrou. Zona este în continuă dezvoltare, în apropiere se află alte parcuri logistice, clădiri de birouri și spații comerciale.Suprafață totală: 597 mp.
Înălțime minimă hala: 6 m.
Suprafață birouri: 157 mp.
Suprafață totală parc logistic: 15.000 mp.
Strucura hala: metal.
Putere instalată: 50 kWA.
An construcție: 2025.
Distanță până la Metrou Anghel Saligny: 2.500 m.
Distanță până la stația RATB: 700 m.Acces: Drum asfaltat înspre Str. Oxigenului, Drumul Între Tarlale, Autostrada Soarelui și Centură București. Poziționarea strategică asigura conectivitate rapidă și eficientă pentru transportul de mărfuri și acces facil la rețelele de transport principale.Dotări: pardoseală elicopterizată cuarț, tâmplărie aluminiu, finisaje moderne în zona de birouri, hidranți la exterior și la interior, desfumare, detecție incendiu, 3 uși pentru acces pietonal, ușa secțională cu lățimea de 4.85 m și înălțimea de 4.40 m pentru acces TIR, locuri de parcare și spații verzi.Halele din parcul logistic sunt finalizate în anul 2025. Va puteți alege hala dorită ce poate fi customizata în funcție de cerințele și afacerea dvs. Prețul este în funcție de suprafețe și opționale (pompe căldură, sprinklere, automatizări, etc).Instalațiile executate permit autorizarea ISU pentru depozitarea de materiale inflamabile şi autorizaţie de incendiu clasa C. Gradul de rezistență la foc - ÎI. Mod de depozitare clasificat ST1, ST2 și ST3.Parcul logistic este construit la standarde ridicate, garantând durabilitate și performanță pe termen lung. În același timp oferă o oportunitate unică pentru investitori și antreprenori care doresc să profite de avantajele acestei locații strategice. Proprietatea se află într-o zona în continuă dezvoltare, oferind potențial pentru creștere valorică în viitor.
Despre Noi
Suntem o companie specializată în dezvoltarea de parcuri logistice și hale industriale durabile, proiectate să integreze cele mai avansate tehnologii, pentru a sprijini eficient operațiunile clienților noștri. Cu o experiență de 9 ani în dezvoltare imobiliară și management de proiecte de construcții, ne dedicăm creării de spații robuste și optim structurate, adaptate cerințelor specifice ale chiriașilor noștri.Misiunea noastră este să furnizăm hale de calitate superioară, perfect adaptate nevoilor pieței actuale, construind totodată parteneriate de lungă durată cu chiriașii noștri. Printr-o abordare flexibilă, ne asigurăm că fiecare spațiu oferă condiții de operare optime și sprijin pentru colaborări sustenabile. Investim constant în facilități avansate de siguranță și confort, dotate cu rezervoare de apă pentru incendii, sprinklere, lagune pentru apele pluviale, sisteme de alarmă anti-incendiu, pompe de căldură și centrale electrice, pentru a asigura protecția și eficiența fiecărui parc logistic.Activitatea noastră este concentrată în zona de est a Bucureștiului, cu obiectivul de a depăși 100 de hale construite până în 2030. Prin angajamentul nostru față de inovație, excelență și adaptabilitate, ne propunem să devenim partenerul de încredere al companiilor din România, oferindu-le spații ideale pentru optimizarea și extinderea afacerilor lor.

